Direkt zum Seiteninhalt
Z104-MFH-Sindelfingen - Strasser Studio
Menü überspringen
×
projekte
buero
kontakt
Menü überspringen
×
projekte
buero
kontakt
Menü überspringen
×
projekte
buero
kontakt
Menü überspringen
×
projekte
buero
kontakt
Menü überspringen
×
projekte
buero
kontakt
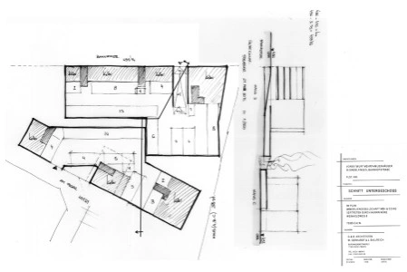
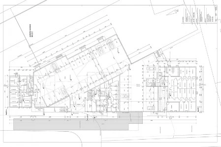
Neubau Mehrfamilienhaus Sindelfingen
Sindelfingen, D, 2014
für G&B Architekten
Status: gebaut
Neubau mit 74 Wohnungen und 2 Gewerbeflächen
Leistungen Ursula Strasser: Entwurf, Projekt- und Ausführungsplanung als Mitarbeiterin von für G&B Architekten
Zurück zum Seiteninhalt
Um diese Website nutzen zu können, aktivieren Sie bitte JavaScript.