Direkt zum Seiteninhalt

Z103-Arztpraxis - Strasser Studio

Menü überspringen
Menü überspringen
Menü überspringen
Menü überspringen
Menü überspringen
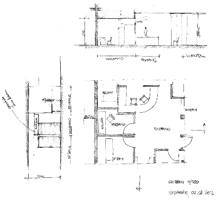
Arztpraxis Dr. Cseke Sindelfingen
Sindelfingen, D, 2012
für G&B Architekten
Status: gebaut

Umbau einer sehr kleinen Raumfläche in eine Arztpraxis mit drei Untersuchungsräumen, kleinem Labor und  grossem Wartezimmer
Leistungen Ursula Strasser: Entwurf und Projektplanung als Mitarbeiterin von G&B Architekten




www.strasserstudio.ch
© 2023
Zurück zum Seiteninhalt